Организация работ
10.1. Организация работ по борьбе с пылью на шахте возлагается на технического руководителя предприятия.
10.2. Выполнение мероприятий по борьбе с пылью проводится силами участков в закрепленных за ними выработках. Отдельные виды работ для различных участков могут выполняться участком профилактических работ по технике безопасности.
Ответственность за выполнение противопылевых мероприятий возлагается на начальника производственного участка, в ведении которого находятся выработки.
10.3. Начальник участка совместно с начальником ВТБ определяет потребность и составляет заявку на оборудование, запасные части, контрольно-измерительные приборы и материалы для целей борьбы с пылью.
10.4. Механик участка должен обеспечить техническое обслуживание и работу оборудования для борьбы с пылью, а также средств пылеподавления и пылеулавливания забойных машин в соответствии с руководствами по их эксплуатации, и выполнение планово-предупредительных ремонтов, а главный механик шахты должен обеспечить ремонт указанного оборудования.
10.5. Организация работ по водоподготовке и водоснабжению для целей пылеподавления возлагается на главного механика шахты.
10.6. Для обеспечения мероприятий по борьбе с пылью, связанных с применением на шахтах значительных количеств химических продуктов (смачивателя, пенообразователя и др.) в производственном объединении или на отдельных шахтах целесообразно сооружать склады. Склад для пенообразователя должен иметь емкость, равную полугодовой потребности в продукте.
10.7. Контроль за выполнением противопылевых мероприятий и состоянием средств борьбы с пылью на шахте, а также организация контроля запыленности воздуха в подземных выработках возлагается на участок вентиляции и техники безопасности.
10.8. Лица надзора при выявлении нарушений мероприятий по борьбе с пылью должны принимать меры по их устранению.
10.9. Начальник участка ВТБ определяет необходимость применения противопылевых респираторов на конкретных рабочих местах.
1. Контроль качества применяемых мероприятий
Общие положения
10.10. Контроль за состоянием пылевой обстановки (СПО) включает: контроль мероприятий по борьбе с пылью, контроль состояния оборудования для пылеподавления, оперативный и периодический контроль средств и способов пылеподавления, находящихся в эксплуатации, контроль концентрации пыли в воздухе.
10.11. Контроль поступающего на шахту оборудования осуществляется энергомеханической службой шахты в соответствии с технической документацией.
10.12. Оперативный (ежесменный) контроль осуществляется надзором участка, в чьем ведении находятся выработки, а также общешахтным надзором и надзором участка ВТБ при посещении выработок.
10.13. Периодический контроль производится не реже одного раза в месяц начальником или помощником начальника участка ВТБ шахты совместно с начальником участка (помощником или механиком участка).
Результаты контроля и устранения нарушений отражаются в книге нарядов участка ВТБ (форма III 10.1).
Оперативный контроль
10.14. При бурении скважин (шпуров) для предварительного увлажнения угольного массива контролируются направление и их глубина, расстояние между ними, исправность бурового станка, бурового инструмента и др.
10.15. При нагнетании жидкости в пласт контролируется исправность насосной установки, герметизаторов, водопровода, манометров. Проверяется наличие пломбы на предохранительном клапане насосной установки.
При работе насосной установки контролируются давление, количество воды, закачиваемой в скважину, и темп нагнетания воды. Давление воды определяется по манометру спустя 10-15 мин. после начала нагнетания, количество воды - по показаниям водомера. Темп нагнетания рассчитывается по количеству жидкости, закачиваемой в скважину (шпур) в течение не менее 10 мин. Эти параметры регистрируются в Журнале контроля и учета работ по нагнетанию воды в пласт (приложение 4).
10.16. В оросительных системах выемочных и проходческих комбайнов (машин) проверяется исправность и работа оросительных устройств, оросителей, средств блокировки орошения, а также отсутствие утечек воды в забойном водопроводе, проверяется исправность устройств для промывки в штрековом и комбайновом фильтрах и наличие смачивателя в дозаторе.
10.17. При применении пневмогидроорошения контролируются давление сжатого воздуха и качество диспергирования воды (вода должна диспергироваться в виде плотного тумана).
10.18. При пылеподавлении пеной контролируются наличие (запас) пенообразователя в дозаторе, исправность дозатора, пеногенераторов и другого оборудования.
10.19. В забоях с ручной выемкой контролируются наличие и исправность оросителей и водопровода.
10.20. Оросительные системы на погрузочных пунктах, конвейерных пересыпах, опрокидывателях, а также оборудование для промывки или орошения при бурении шпуров и скважин, контролируются на отсутствие утечек воды и механических повреждений. Водяные факелы, создаваемые оросителями, должны перекрывать все очаги пылеобразования. Работа водяной завесы в подготовительных выработках контролируется визуально по наличию плотного облака диспергированной воды, перекрывающего все сечения выработки.
На погрузочных пунктах, конвейерах, в вагонетках контролируется влажность угольного штыба. При достаточной влажности штыб после сжатия в руке не должен рассыпаться.
10.21. При применении пылеулавливания контролируется отсутствие внешних механических повреждений укрытий и пылеулавливающих установок. При работе пылеулавливающей установки проверяется наличие выпуска воды (шлама) из шламоотделителя. Решетки на отсасывающих патрубках и сами патрубки должны быть очищены от штыба и пыли.
10.22. В выработках с отрицательными температурами необходимо контролировать применение мер, предотвращающих замерзание воды в оросительных водопроводах (наличие циркуляции, подогрева и слива воды и др.).
10.23. В конвейерных выработках, в пунктах погрузки угля из лавы на призабойных участках подготовительных выработок и в других местах интенсивного пылеотложения необходимо контролировать наличие отложений сухой пыли.
10.24. При неисправности или неиспользовании средств борьбы с пылью, а также при нарушении технологии проведения обеспыливающих мероприятий, работы в выработке должны быть остановлены и приняты меры по устранению этих недостатков.
Периодический контроль
10.25. Производится контроль соответствия фактических параметров применяемых способов и средств борьбы с пылью, указанным в паспорте противопылевых мероприятий участка, с помощью контрольно-измерительных приборов (манометров, счетчиков-расходомеров, водомеров, влагомеров и др.).
10.26. Пробным пуском насосной установки для нагнетания воды определяют максимальное давление срабатывания предохранительного клапана, которое фиксируется по показанию манометра. Проверяется соответствие параметров предварительного увлажнения паспортным данным.
10.27. В оросительном устройстве забойных машин в соответствии с паспортом проверяются число и тип оросителей и определяются расход и давление воды, при котором происходит срабатывание средств блокировки. Давление воды у оросителей замеряют манометром, установленным в гнездо вывернутого на время замера оросителя. Через 5 мин. после пуска насосной установки это давление должно быть не ниже указанного в паспорте участка.
10.28. При работающей насосной установке не должно быть сбрасывания воды на слив и утечек воды в оросительном водопроводе.
10.29. При работе водяных и туманообразующих завес контролируется давление воды, которое должно соответствовать указанному в паспорте участка. Визуально контролируется качество распыления воды и полнота перекрытия факелом сечения выработки.
Контроль концентрации пыли в воздухе
10.30. В горных выработках при выполнении производственных процессов должна определяться запыленность воздуха. Оперативный контроль запыленности воздуха осуществляется не реже одного раза в неделю, периодический - не реже одного раза в квартал. В забоях, где при оперативном контроле выявлены резкие колебания запыленности воздуха, периодический контроль осуществляется не реже двух раз в квартал. Для механизированных очистных и комбайновых проходческих выработок, а также для очистных выработок с выемкой угля отбойными молотками и комплексным обеспыливанием воздуха должны быть установлены технически достижимые уровни остаточной запыленности воздуха.
10.31. Контроль запыленности воздуха производится по среднесменным или максимальным разовым концентрациям пыли. Полученные данные используются для сопоставления их с ПДК или технически достижимыми уровнями остаточной запыленности воздуха, а также для определения пневмокониозоопасности горных работ.
10.32. Контроль запыленности воздуха производится с помощью приборов, допущенных в установленном порядке. Измерения запыленности воздуха должны проводиться лицами, прошедшими специальное обучение и сдавшими экзамены по специальной программе (приложение 7).
10.33. Периодический контроль запыленности воздуха производится в соответствии с графиком (приложение 8), который за 15 дней до начала квартала составляется начальником участка ВТБ, согласовывается с ВГСЧ и утверждается техническим руководителем предприятия.
10.34. Отбор проб пыли для определения запыленности воздуха при периодическом контроле и для определения свободной двуокиси кремния производится работниками ВГСЧ или другой уполномоченной организацией в присутствии представителя участка ВТБ шахты и оформляется актом-извещением (приложение 9). Результаты замеров передаются шахте в двухдневный срок.
10.35. На вновь вводимых в эксплуатацию шахтах, горизонтах и выработках, а также в действующих выработках при изменении технологии работ или обеспыливающих мероприятий контроль запыленности воздуха должен предусматриваться не позднее, чем через 15 суток после начала эксплуатации или изменения технологии.
10.36. Определение свободной двуокиси кремния в витающей пыли должно производиться работниками ВГСЧ или другой уполномоченной организацией в соответствии с приложением 10.
10.37. Технический руководитель предприятия по результатам измерений запыленности воздуха должен принимать меры по улучшению пылевой обстановки и соблюдению ПДК или технически достижимых уровней остаточной запыленности воздуха.
10.38. Лаборатория ВГСЧ должна вести журнал учета запыленности воздуха и содержания в пыли свободной двуокиси кремния по установленной форме (приложение 11). Журнал должен храниться в лаборатории в течение 10 лет.
10.39. Определение концентрации пыли должно производиться на рабочих местах в следующих пунктах:* ________________ * Пункты, для которых определяется технически достижимый уровень остаточной запыленности воздуха, выделены.
- при выемке угля комбайном на пологих пластах - в 10-15 м от комбайна по направлению движения воздуха, на рабочих местах машиниста комбайна и машиниста крепи;
- при выемке угля комбайнами на крутых пластах при восходящем проветривании - на вентиляционном штреке в 10-15 м от забоя лавы, а при нисходящем проветривании - на исходящей из очистной выработки вентиляционной струе в 10-15 м от основной вентиляционной печи;
- при выемке угля отбойными молотками в очистных выработках крутых пластов - в третьем от вентиляционного штрека уступе;
- при выемке угля стругами на пологих и наклонных пластах в лаве - в 10-15 м от вентиляционного штрека;
- при щитовой выемке на крутых пластах - на рабочем месте машиниста;
- при подготовке ниш и бурении скважин в очистной выработке - на рабочих местах;
- на выбросоопасных пластах при дистанционном управлении машиной - на рабочем месте машиниста и на вентиляционном штреке;
- в подготовительной выработке при бурении и погрузке в 5-10 м от забоя со смещением к стенке выработки, противоположной вентиляционному трубопроводу, и на рабочем месте машиниста погрузочной машины;
- в подготовительной выработке при работе комбайна - в 30 м от комбайна, на рабочих местах машиниста и его помощника;
- в конвейерной выработке - в 10-15 м от пункта перегрузки угля с конвейера на конвейер по направлению движения воздуха;
- у стационарных погрузочных пунктов, опрокидывателей - на местах работы машиниста опрокидывателя и люкового;
- в воздухоподающих выработках - в 10-15 м от устья ствола в околоствольном дворе, а также на штреках - в 10-15 м от очистной выработки.
10.40. В зависимости от конкретных условий начальник участка ВТБ шахты может назначить дополнительные пункты для определения концентрации пыли и технически достижимых уровней остаточной запыленности воздуха.
10.41. Отбор проб пыли или измерение запыленности при периодическом контроле должны производиться по середине высоты выработки, а в выработках высотой более 2 м - на высоте 1,5 м от почвы. В очистных выработках пологих пластов, разделенных элементами крепи на отдельные дороги, отбор проб производится в центре сечения той дороги, на которой преимущественно находятся люди; в очистных выработках крутых пластов с молотковой выемкой пробы отбираются в верхней части уступа по второй дороге. При повторных измерениях следует обеспечить идентичное положение пылеприемного устройства (пылемера) по отношению к источнику пыли.
10.42. Для определения максимально разовой концентрации пыли отбор проб аспирационными приборами (например, аспиратором АЭРА) производится в течение не менее 30 мин при нормальном течении основного пылеобразующего процесса (источника) для данного места. При этом может производиться непрерывный отбор одной или последовательно нескольких проб. Среднее значение определяется как среднее арифметическое из отдельных определений.
10.43. Перед отбором проб предварительно рассчитывается минимально и максимально допустимое время отбора одной пробы (при расходе воздуха 20 л/мин.):
, где:
- допустимое время отбора пробы, мин.
- минимальная (или максимальная) навеска пыли на фильтре, мг;
- предполагаемая запыленность воздуха, мг/м.
Минимально и максимально допустимые величины навесок пыли соответственно составляют (в мг):
| для фильтров АФА-В-10 | 2 и 25 |
| для фильтров АФА-В-20 | 4 и 50 |
10.44. В тех случаях, когда допустимое время отбора пробы равно или больше 30 мин., отбирается одна проба; если указанное время составляет от 15 до 30 мин. - отбирается две пробы; в остальных случаях отбирается три пробы пыли с такой последовательностью, чтобы от начала отбора первой пробы до окончания отбора третьей проходило не менее 30 мин.
10.45. При отборе пробы пыли следует использовать специальные патроны. Патрон при отборе пробы необходимо располагать так, чтобы его осевая линия находилась в горизонтальной плоскости, а линия входа в патрон запыленного воздуха была перпендикулярна направлению движения воздушного потока в выработке.
В случае, когда рабочие процессы или операции сопровождаются выбросом крупных частиц, а также при наличии капежа, брызг и других помех, входное отверстие патрона должно быть направлено вниз.
Содержание пыли в воздухе вычисляют по формуле:
, мг/м
где: - вес фильтра с пылью, мг;
- вес чистого фильтра, мг;
- производительность аспирационного прибора, л/мин;
- продолжительность отбора проб, мин.
10.46. В очистных выработках тонких пологих пластов с комбайновой выемкой допускается производить определение запыленности воздуха у комбайна и на рабочих местах расчетным путем. Для этого концентрация пыли измеряется в лаве на стационарном пункте, расположенном на расстоянии 10-15 м от сопряжения лавы с вентиляционным штреком. Измерение (отбор проб) производят в течение времени съема одной полосы угля или на участке лавы длиной не менее 50 м, начиная от вентиляционного штрека (замерного пункта). По среднему значению измерений запыленности с использованием данных о скорости движения воздуха в лаве и расстоянии между замерным пунктом и комбайном по номограмме (рис.10.1) определяется запыленность воздуха в 10 м от комбайна.
Рис.10.1. Номограмма для определения концентрации пыли в очистном забое

м/с - скорость движения воздуха в очистной выработке по призабойной "дороге",
м - расстояние между замерным пунктом и комбайном в конце замера;
, мг/м - концентрация пыли на сопряжении лавы с венштреком;
мг/м - концентрация пыли в 10 м от комбайна по ходу движения воздуха
Запыленность воздуха на рабочих местах определяется умножением полученного значения запыленности в 10 м от комбайна на пересчетные коэффициенты (табл.10.1).
Таблица 10.1
Значения коэффициентов для расчета запыленности воздуха на рабочих местах по запыленности измерений в 10 м от комбайна по ходу движения воздуха
| Профессия и рабочие места | Значение пересчетного коэффициента для комбайнов различного типа | |||
| Узкозахватные комбайны | Широкозахватные комбайны | |||
| с односторонним размещением исполнительных органов (К-52, К-101 и т.п.) | с разнесенными исполнительными органами (ГШ-68, КШ-3, К-103, К-80 и т.п.) | с вертикальным исполнительным органом (МК-67 и т.п.) | ||
| Машинист комбайна | 0,15 (0,4)* | 0,3 | 0,35 | 1,3 |
| Машинист крепи | 0,6 | 0,6 | 0,5 | - |
| ГРОЗ по креплению и передвижке конвейера в забоях с индивидуальной крепью | 0,5 | - | 0,5 | 0,1 |
| ГРОЗ по выемке верхней ниши | 0,4 | 0,4 | 0,4 | 0,4 |
10.47. Среднесменная концентрация пыли определяется специальными приборами (индивидуальными пробонаборниками) или расчетным путем.
Расчет среднемесячной концентрации пыли производится по формуле:
, мг/м,
где: - среднесменная и максимальная разовая концентрация пыли, мг/м;
- коэффициент, зависящий от продолжительности пылеобразующего процесса (рис.10.2).
Рис.10.2. График для определения коэффициента связи между среднесменной и максимальной разовой концентрации пыли

- коэффициент;
- длительность основного пылеобразующего процесса, ч
Технически достижимые уровни остаточной запыленности воздуха (ТДУ)
10.48. Для каждой выработки устанавливается одно значение ТДУ, характеризующее запыленность воздуха при основном технологическом процессе: в очистной выработке
- при выемке угля, в подготовительной выработке
- при работе проходческого комбайна.
10.49. ТДУ устанавливаются на основании результатов измерений концентрации пыли, выполненных в выработках, вводимых в эксплуатацию, или в выработках, где в работу введен новый комбайн (струг или агрегат), укомплектованный системой пылеподавления заводского изготовления, эксплуатируемый в соответствии с руководством по эксплуатации. При этом в забое должно производиться комплексное обеспыливание с параметрами, соответствующими требованиям настоящего руководства.
10.50. Результаты измерений рассматриваются и принимаются в качестве ТДУ комиссией в составе руководителя предприятия (председатель), участкового инспектора РГТИ и технического инспектора труда ЦК профсоюза. Принятое решение оформляется актом, согласовывается МакНИИ или ВостНИИ.
10.51. При рассмотрении материалов по ТДУ МакНИИ или ВостНИИ имеют право потребовать провести повторные измерения концентрации пыли или параметров пылеподавления, в том числе с участием представителя МакНИИ или ВостНИИ.
10.52. Срок действия принятых значений ТДУ не должен превышать один год.
10.53. Значение ТДУ используется в качестве контрольного показателя, характеризующего эффективность пылеподавления в выработке. При измерении горнотехнических условий или при применении новых мер борьбы с пылью должно производиться повторное определение ТДУ остаточной запыленности воздуха.
Установление пневмоконизоопасности горных работ в шахтах.
10.54. Для всех видов горных работ, где запыленность воздуха превышает предельно допустимые концентрации, должна быть определена их пневмокониозоопасность.
10.55. Установление категорий пневмокониозоопасности горных работ производится в соответствии с "Методикой по определению пневмокониозоопасности горных работ в угольных шахтах" (приложение 12).
10.56. Эксплуатация выработок, не имеющих актов о пневмокониозоопасности горных работ, запрещается.
Применение индивидуальных средств защиты от пыли.
10.57. В случаях, когда технические мероприятия не могут обеспечить снижения запыленности воздуха на рабочих местах до предельно допустимых концентраций (табл.10.2), обязательно применение противопылевых респираторов.
Таблица 10.2
Предельно допустимые концентрации пыли (ПДК)
| Наименование пыли | Содержание свободной двуокиси кремния, % | ПДК мг/м |
| Пыль породная и углепородная | 10-70 | 2 |
| Пыль угольная | 5-10 | 4 |
| Пыль антрацитовая | Менее 5 | 6 |
| Пыль каменных углей | Менее 5 | 10 |
| Пыль кукерситных горючих сланцев | 2-10 | 4 |
| Пыль кукерситных горючих сланцев | 10-70 | 2 |
10.58. Тип противопылевых респираторов выбирается в зависимости от комплексных показателей различных моделей: уровня запыленности воздуха, эффективности пылезадержания, массы и других данных, указанных в табл.10.3.
Таблица 10.3
Комплексные показатели различных моделей фильтрующих респираторов
| Тип респиратора | "Астра-2" | 62Ш | ПРШ-741 | ПРШ-Б | РПА-1 | У-2к | ШБ-"Лепесток" |
| Масса респиратора (кг) | 0,250 | 0,2 | 0,2 | 0,18 | 0,2 | 0,050 | 0,010 |
| Площадь фильтра (см ) | 400 | 460 | 1000 | 800 | 1000 | 240 | 240 |
| Эффективность пылезадержания (%) | 99,98 | 99,9 | 9,99 | 99,9 | 99,98 | 99,8 | 99,98 |
| Запыленность (кг/м ) | Не более 300 | Не более 200 | Не более 1000 | Не более 1000 | Не более 1000 | Не более 25 | Не более 100 |
| Срок защитного действия респиратора (ч) | Не менее 4 | Не менее 5 | Не менее 6 | Не менее 6 | Не менее 4 | Не менее 5 | Не менее 4 |
| Стоимость (руб.) | 2,00 | 2,20 | 2,45 | 2,45 | - | 0,95 | 0,30 |
| Стоимость запасного фильтрующего элемента (руб.) | 2х0,20 | 0,45 | 0,55 | 0,55 | - | - | - |
10.59. Рабочим, пользующимся противопылевыми респираторами, запрещается:
пользоваться респиратором, бывшим в употреблении у другого лица и не прошедшим соответствующую санитарно-гигиеническую обработку;
передавать свой респиратор другим лицам;
разбирать респиратор или снимать его в запыленной атмосфере;
хранить респиратор вместе со спецодеждой или на рабочих местах.
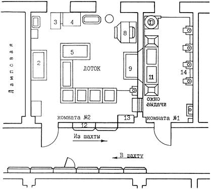
10.60. Для хранения, проверки, обработки и ремонта противопылевых респираторов на каждой шахте должна быть организована специальная респираторная, расположенная в здании административно-бытового комбината (рис.10.3).
Рис.10.3. План респираторной и примерная схема расположения оборудования

1 - шкаф для верхней одежды; 2 - рабочий стол; 3 - шкаф для сушки респираторов; 4 - стиральные машины; 5 - стол для обезвоживания; 6 - центрифуга для сушки респираторов; 7 - тележка для транспортирования респираторов; 8 - стиральная машина; 9 - бункер для элементов; 10 - пылеулавливающий агрегат; 11 - столы для разборки респираторов; 12 - стеллаж для хранения респираторов; 13 - шкаф для запасных частей и материалов; 14 - устройство "Ирис" для регенерации и проверки фильтрующих элементов
10.61. Респираторная должна состоять из одной-двух комнат общей площадью 35-40 м из расчета обеспечения обработки 300 респираторов в смену.
Помещения респираторной должны иметь приточно-вытяжную вентиляцию, подвод холодной и горячей воды и канализацию. Пол, стены и оборудование респираторной должны иметь водостойкие покрытия, допускающие влажную уборку.
10.62. Респираторная должна обслуживаться постоянным штатом работников. В каждую смену, при обработке до 300 респираторов, обслуживать респираторную должен один человек, при обработке свыше 300 респираторов в смену - два человека.
10.63. Осмотр и обработка респираторов должны производиться ежесуточно. Обработка респираторов должна включать:
После сборки, осмотра и проверки на контрольных приборах устанавливается пригодность респираторов к дальнейшему использованию. Хранение обработанных респираторов осуществляется в специальных стеллажах.
10.64. Респираторы должны быть закреплены за горнорабочими. Каждый респиратор должен иметь свой номер и храниться в специальной ячейке стеллажа, имеющей соответствующий номер.
10.65. Ежемесячно службой ВТБ должна осуществляться проверка всех находящихся в эксплуатации противопылевых респираторов.
Ежемесячные проверки должны проводиться лицом, назначенным приказом по предприятию, и оформляться актом.
11 ПЫЛЕВЗРЫВОЗАЩИТА УГОЛЬНЫХ И СЛАНЦЕВЫХ ШАХТ
Общие положения
11.1. Пылевзрывозащита угольных и сланцевых шахт представляет комплекс мероприятий по предупреждению и локализации взрывов пыли включающий:
определение взрывчатых свойств угольной и сланцевой пыли;
определение интенсивности пылеотложения в горных выработках;
выбор и выполнение взрывозащитных мероприятий по снижению интенсивности пылеотложения, предупреждению и локализации взрывов пыли;
контроль пылевзрывобезопасности горных выработок.
Определение взрывчатых свойств отложившейся угольной пыли
11.2. Показателями взрывчатых свойств отложившейся угольной пыли являются нижний предел взрываемости () и норма осланцевания ().
Нижним пределом взрываемости отложившейся пыли называется максимально допустимое количество отложившейся угольной пыли, отнесенное к единице объема выработки, при котором невозможно распространение взрыва по всему запыленному участку.
Под нормой осланцевания горных выработок следует понимать наименьшее содержание негорючих веществ в %, при котором угольная пыль в смеси с инертной не взрывается.
11.3. Нижние пределы взрываемости и нормы осланцевания должны определяться в лабораториях МакНИИ или ВостНИИ для углей разрабатываемых шахтопластов с выходом летучих веществ менее 15% (кроме антрацитов) ежегодно, для вновь вводимых в эксплуатацию шахтопластов - перед их вводом.
11.4. Лаборатории МакНИИ или ВостНИИ должны:
проводить испытания угольной пыли на определение показателей взрываемости в срок не позднее 15 дней со дня получения проб и результаты направлять шахте предприятию) РГТИ и ВГСЧ;
определять нижний предел взрываемости отложившейся угольной пыли из соотношения
, г/м,
где нижний предел взрываемости взвешенной угольной пыли определяется экспериментальным путем.
11.5. На шахтах, разрабатывающих пласты угля с выходом летучих 15% и более, при изменении выхода летучих веществ и негорючих веществ более чем на 1% по данным ОТК, начальник участка ВТБ должен производить корректировку нижних пределов взрываемости пыли по номограмме (рис.11.1) и нормы осланцевания (пп.11.9 и 11.10).
Рис.11.1. Номограмма для определения нижних пределов взрываемости отложившейся угольной пыли

11.6. При содержании негорючих веществ в пластовой пробе угля более 30%, оно, при определении показателей взрываемости пыли, принимается равным 30%.
11.7. Нижние пределы взрываемости пыли принимаются для бурых углей 15-48 г/м, горючих сланцев - 75 г/м.
11.8. Нижние пределы взрываемости пыли и нормы осланцевания для угольной пыли пластов проектируемых шахт должны определяться в лаборатории МакНИИ или ВостНИИ по пробам, представляемым геолого-разведочными партиями при разведке месторождений. Допускается временно принимать показатели взрываемости, установленные для пыли аналогичных пластов, разрабатываемых близлежащими (граничащими) шахтами.
11.9. Норма осланцевания должна определяться по фактическому содержанию негорючих веществ в пластовой пробе угля и добавке инертной пыли по формуле:
, %
11.10. Добавка инертной пыли () должна определяться для углей с выходом летучих веществ 15% и более по номограмме (рис.11.2).
Рис.11.2. Номограмма для определения добавки инертной пыли

11.11. Отбор проб угля для определения взрывчатых свойств пыли в лаборатории производится в соответствии с приложением 13.
Классификация мероприятий по пылевзрывозащите шахт
11.12. На шахтах, разрабатывающих пласты угля, опасные по взрывам пыли, должны осуществляться мероприятия по предупреждению и локализации взрывов пыли, основанные на применении инертной пыли (сланцевая пылевзрывозащита), воды (гидропылевзрывозащита) или воды и инертной пыли (комбинированная пылевзрывозащита).
Выбор способов и средств пылевзрывозащиты должен осуществляться под личную ответственность технического руководителя шахты.